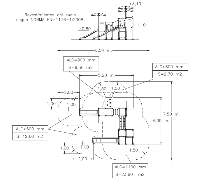
Dimension: 5,20 x 4,35 x 3,10 m
Total Area: 8,60 x 7,50 m
Fall height: 1100 mm
Total weight: 511 kg
Age: From 3 to 10 years
Users: 20 user/s
Certificates:
|
DOWNLOADS Jolas Catalogue |
|
|
CALL US AND WE WILL ADVISE YOU +34 943 83 34 00 |
|
|
CONFIGURATOR Start session / Sign up |
|
Dimension: 5,20 x 4,35 x 3,10 m
Total Area: 8,60 x 7,50 m
Fall height: 1100 mm
Total weight: 511 kg
Age: From 3 to 10 years
Users: 20 user/s
Certificates: